Квартира с 3 спальнями, лот 322782
530 000 000 ₽
1 693 000 рублей за м2
6 471 000 $
21 000 $ за м2
5 689 000 €
18 000 € за м2
этаж:
6 из 7
площадь:
313 м2
отделка:
Без отделки
опции:
панорамные окна
терраса
Описание комплекса
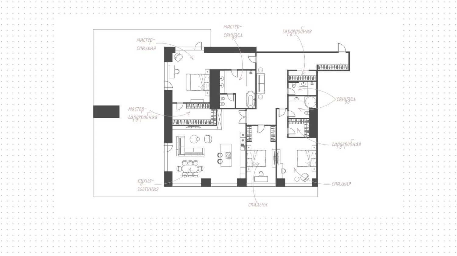
Светлая квартира с 3 спальнями и террасой общей площадью 313 м² в клубном комплексе делюкс-класса Knightsbridge Private Park в Хамовниках. Квартира без отделки расположена на 6 этаже, откуда открываются виды на город, МГУ, башни «Москва-Сити» и благоустроенную территорию комплекса. Возможно спланировать кухню-гостиную, мастер-спальню со своей ванной комнатой и гардеробной, 2 спальни, санузлы, гардеробные, постирочную и холл. За дополнительную плату возможно приобрести 2 машино-места в подземном паркинге.
Брокеры объекта:
Ирина Егорова
Руководитель