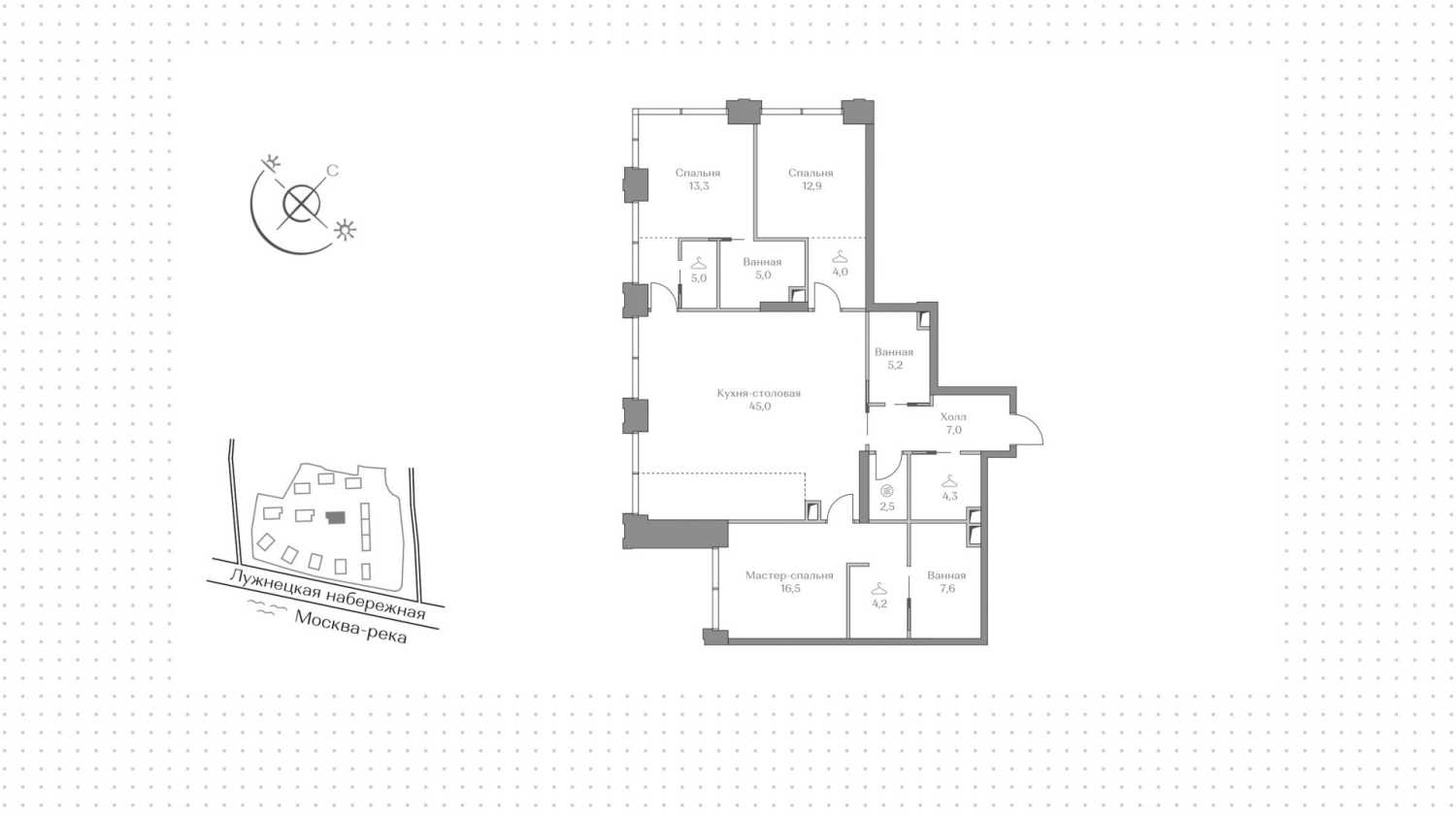
Квартира с 3-мя спальнями расположена на 6 этаже в коллекции клубных домов Luzhniki Collection неподалёку от станции метро Воробьёвы горы. Квартира площадью 133 м², без отделки – вы сами можете создать свой собственный дизайн. Из панорамных окон открывается вид в тихий ландшафтный парк.