Image 1 Image 2 Image 3 Image 4 Image 5 Image 6 Image 7 Image 8 Image 9 Image 10 Image 11 Image 12

12 фото
Скачайте презентацию комплекса в 1 клик
book Скачать презентацию в PDF 6.12 MB, время скачивания 3 секунд

Квартира с 2 спальнями, лот 323459

350 000 000 ₽
2 035 000 рублей за м2
4 838 000 $
28 000 $ за м2
4 163 000 €
24 000 € за м2
$
этаж: 3 из 7
площадь: 172 м2
отделка: С отделкой
мебель: С мебелью
опции:

камин
панорамные окна

Описание комплекса
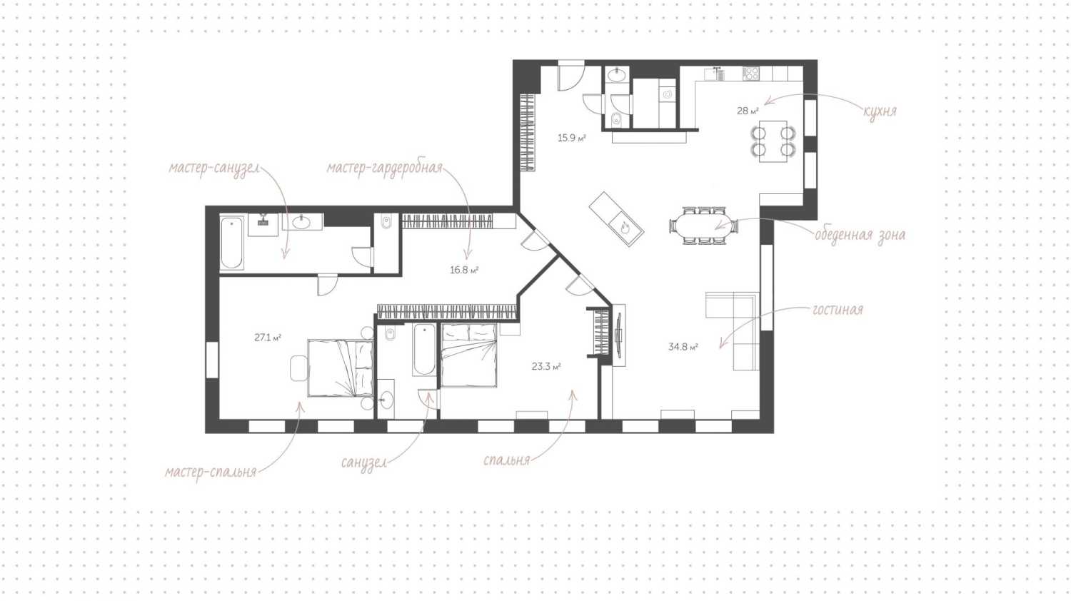
Просторная квартира с дровяным камином в комплексе премиум-класса «Литератор» в Хамовниках. Квартира с двумя спальнями общей площадью 172 м² расположена на 3 этаже. Светлый дизайнерский интерьер оформлен в стиле современной классики. В отделке использован натуральный мрамор, паркет из американского ореха. Панорамные окна в пол, много естественного света. Высота потолков 3,2 метра. Планировка: светлая зона гостиной-столовой-кухни 60 м² с действующим камином, основная спальня 27 м² с гардеробной 16 м² и собственной ванной комнатой с душем и отдельной ванной. Детская или гостевая спальня с собственным санузлом, гостевой санузел с постирочной зоной. Квартира укомплектована мебелью, техникой Gaggenau. В подземном паркинге одно машино-место.
Брокеры объекта:
Татьяна Булавкина
Татьяна Булавкина
Брокер
Ирина Егорова
Ирина Егорова
Руководитель
Александр Дубинин
Александр Дубинин
Брокер
Скачайте презентацию комплекса в 1 клик
book Скачать презентацию в PDF 6.12 MB, время скачивания 3 секунд
Похожие объекты
Квартира с 3 спальнями, 182 м2
ЖК Афанасьевский
Арбатская
350 000 000 ₽
4 838 000 $
4 163 000 €
Квартира с 2 спальнями, 117 м2
ЖК Садовые кварталы
Фрунзенская
350 000 000 ₽
4 838 000 $
4 163 000 €
Квартира с 3 спальнями, 171 м2
ЖК Садовые кварталы
Фрунзенская
349 990 000 ₽
4 838 000 $
4 163 000 €